McCartney & Crawford

C. 4.5 Acres Opposite, 20 Speerstown Road, Moorfields, Ballymena BT42 3DD

Grass Field (with no PP) For Sale

Sale Agreed £50,000

Print additional images & map (disable to save ink)

Photo 1 of C. 4.5 Acres Opposite, 20 Speerstown Road, Moorfields, Ballymena

Telephone:

028 2565 2272

View Online:

www.mccartneyandcrawford.com/1054871

Key Information

Address C. 4.5 Acres Opposite, 20 Speerstown Road, Moorfields, Ballymena
Price Last listed at Offers over £50,000
Land type Grass Field (with no PP)
Size 4.5 acres
Planning No Planning Permission
Status Sale Agreed

Features

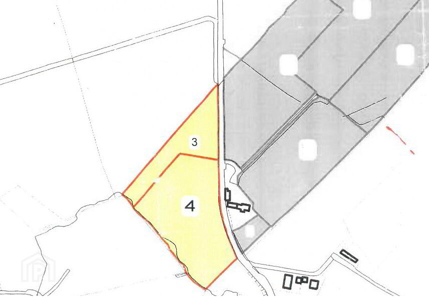
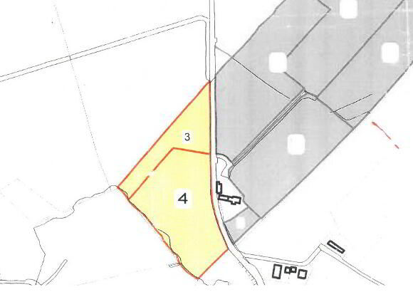
  • 2x Road Fronting Fields
  • Presently in Grass
  • Area Totalling Approx. 4.5 Acres
  • Natural Stream to Rear
  • Strong Agricultural Area of Moorfields
  • Handy Small Block in Good Country & Farming District

Additional Information

McCartney & Crawford are pleased to introduce this convenient block of land to the open sales market. Consisting of two road-fronting fields presently in grass with a natural stream running through the back, totalling some 4.5 acres.

The fields sit in a beneficial location which is popular for local agricultural use. 


For Maps, Appointments to View, and Offers contact Selling Agent McCartney & Crawford:

28-30 Thomas Street, Ballymena, BT43 6AX

T: 028 2565 2272

E: mail@mccartneyandcrawford.com


These particulars, whist believed to be accurate are set out as a general outline only for guidance and do not constitute any part of an offer or contract. Intending purchasers should not rely on them as statements of representation of fact but must satisfy themselves by inspection or otherwise as to their accuracy. No person in the employment of McCartney and Crawford has the authority to make or give any representation or warranty in respect of the property.

  • McCartney & Crawford

    McCartney & Crawford

    028 2565 2272

Photo Gallery

Photo 1 of C. 4.5 Acres Opposite, 20 Speerstown Road, Moorfields, Ballymena Photo 2 of C. 4.5 Acres Opposite, 20 Speerstown Road, Moorfields, Ballymena

Visit www.mccartneyandcrawford.com for further details.